SAINT ROMAIN LA MOTTE

Les Maisons Foyer Roannais vous proposent la construction d’une maison de plain-pied moderne et fonctionnelle sur une parcelle viabilisée de 572 m² environ.

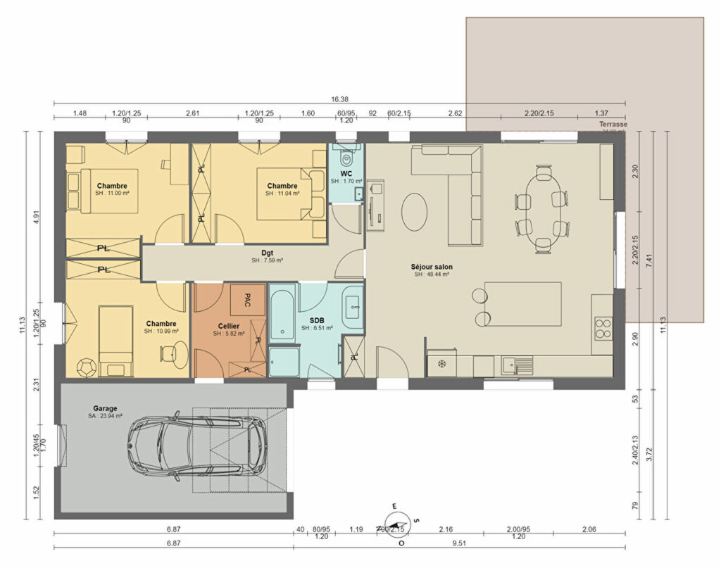
Caractéristiques du projet :
– 3 chambres spacieuses de plus de 11 m²
– Pièce de vie ouverte lumineuse et conviviale
– Cellier avec accès direct au garage
– Salle d’eau moderne
– WC indépendant

Prestations de qualité :
– Conforme à la réglementation environnementale RE2020
– Chauffage PAC Air/Air pour un confort optimal
– Volets roulants électriques en aluminium

Projet entièrement personnalisable !
Réalisez votre maison idéale selon vos envies et vos besoins.
Contactez Maisons Foyer Roannais pour une étude personnalisée et donnez vie à votre projet immobilier !

*Le terrain est proposé et vendu par notre partenaire foncier selon les disponibilités en cours. Veuillez noter que les frais de notaire, les taxes diverses, les papiers peints, la peinture, la moquette et les aménagements extérieurs ne sont pas inclus dans le prix.
Les images présentées sont non contractuelles.
Les tarifs sont applicables à partir du 1er janvier 2026 et peuvent être modifiés sans préavis. Le prix final peut varier en fonction des options choisies et des prestations demandées.
MANDAT N° 163

Besoin d'être accompagné pour concrétiser votre projet